BRASOV: Investitie majora pe 9,1 hectare de teren pentru locuinte si turism

: *****
: nou | : BV43572 | : 10-04-2026
: Imobile Rezidentiale
: Ansamblu rezidential
: *****
: 14,70 mil. euro
: ***** mp
: S+P+12E, S+P+6E, S+P+4E
: Beton Armat
: *****
: *****
: PRE-Executie, Pregatire Investitie
: Brasov
: BRASOV
: *****
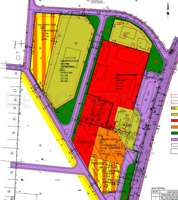
: Complex mixt, amplasat pe un teren de peste 9,1 hectare, care va include imobile de locuinte colective (regim maxim admis de inaltime S+P+6E), turistice (regim maxim admis de inaltime S+P+12E), administrative/de prestari servicii si cu functiuni de invatamant (regim maxim admis de inaltime S+P+4E). Potrivit indicatorilor urbanistici propusi, obiectivul va totaliza o suprafata construita de cel mult 18.377 mp. Vor fi amenajate locuri de parcare, alei carosabile/pietonale si zone de agrement.
: *****

Important:

Accesul la informatiile detaliate este permis numai utilizatorilor abonati care au un abonament valid.
Daca sunteti deja abonat este necesar sa va AUTENTIFICATI.
Pentru informatii suplimentare utilizati sectiunea TESTARE & ABONARE, trimiteti mesaj prin email: Această adresă de email este protejată contra spambots. Trebuie să activați JavaScript pentru a o vedea.,
sau apelati la telefon: 0773 943 239, 021-336.04.16, 021-336.04.17. Va multumim!

PROIECTE NATIONALE

Serviciul Proiecte Nationale ofera informatii relevante despre noile proiecte / investitii importante in constructii, anuntate de catre investitori.

Publicam date pentru ofertarea de lucrari si servicii la noile investitii private / publice disponibile, cum sunt: descriere, documentatie, termene, stadiu, date de contact pentru beneficiar, proiectant, dezvoltator, antreprenor / firma de constructii etc.
SIBIU: Ansamblu rezidential cu 6 imobile de locuinte si 180 apartamente
15.04.2026 | Sibiu | Civile, Locuinte | D+P+4E, D+P+3E+E4-retras, D+P+2E+E3-retras | Valoare: 16 mil. euro
MARAMURES: PUZ pentru o noua zona industriala pe un teren de 89.000 mp
15.04.2026 | Maramures | Industriale, Hale | P+2E | Valoare: 7 mil. euro
POPESTI-LEORDENI: Peste 25 milioane de lei pentru 3 tronsoane de locuinte colective
15.04.2026 | Ilfov | Civile, Locuinte | Ds+P+5E | Valoare: 5 mil. euro
BRASOV: Investitie de 98 milioane de lei in 7 imobile de locuinte de tip vila
14.04.2026 | Brasov | Civile, Locuinte | D+P+3E+E4-retras | Valoare: 20 mil. euro
BIHOR: Extindere si modernizare de 40 milioane lei pentru unitati de invatamant
14.04.2026 | Bihor | Civile, Invatamant | D+P+2E+M, S+Parter-inalt+1E+M | Valoare: 8 mil. euro
CLUJ: PUZ pentru un nou cartier cu 15 loturi de imobile de locuinte mici
14.04.2026 | Cluj | Civile, Locuinte | S+P+1E+M | Valoare: 4 mil. euro
TELEORMAN: Investitie de 30 milioane de euro pentro o unitate de productie
13.04.2026 | Teleorman | Industriale, Hale | | Valoare: 30 mil. euro
SIBIU: Santier in lucru pentru un proiect major de locuinte pe 11 hectare
13.04.2026 | Sibiu | Civile, Locuinte | S+P+5E+E6-retras | Valoare: 15 mil. euro
MAGURELE: Ansamblu cu imobile de locuinte individuale, in curs de avizare
13.04.2026 | Ilfov | Civile, Locuinte | P+2E+M | Valoare: 4 mil. euro
BRASOV: Investitie majora pe 9,1 hectare de teren pentru locuinte si turism
10.04.2026 | Brasov | Civile, Mixt | S+P+12E, S+P+6E, S+P+4E | Valoare: 15 mil. euro
ARAD: Peste 16.000 mp construiti pentru un nou centru de servicii si comert
10.04.2026 | Arad | Industriale, Mixt | P+2E | Valoare: 13 mil. euro
ALBA: PUZ pentru un nou cartier cu 31 imobile de locuinte individuale, P+1E+M
10.04.2026 | Alba | Civile, Locuinte | P+1E+M | Valoare: 5 mil. euro
©2026 Agenda Investitiilor
(un produs Agenda Constructiilor)
Str. Ienachita Văcărescu 17, sector 4, Bucuresti.
Fereastra
Agenda Constructiilor

Pentru informații suplimentare echipa noastră vă stă la dispoziție:
Telefon: 021 336 0416 | Mobil: 0773 943 239
Email: office@agendaconstructiilor.ro
Adresă: Str. Ienăchiță Văcărescu nr. 17, Sector 4, București
Rampa Invest SRL - Cod Fiscal: RO 13506167, J40/10200/2000

Don't have an account yet? Register Now!

Sign in to your account